寻找他乡的故事 荣誉主席 注册 2006-12-01 消息 4,400 反馈评分 0 点数 0 2008-12-26 #1 本人有一块地皮,宽度是10。5米,深度是10。7米,二楼起阳台可以飘出1。3米,也是就是2楼的尺寸是10。5*12米,一楼计划用来做门面,有没有相关高手可以给予指点!或者电白有没有一些专门的设计公司啊?同乡们指点下啊!谢谢!
本人有一块地皮,宽度是10。5米,深度是10。7米,二楼起阳台可以飘出1。3米,也是就是2楼的尺寸是10。5*12米,一楼计划用来做门面,有没有相关高手可以给予指点!或者电白有没有一些专门的设计公司啊?同乡们指点下啊!谢谢!
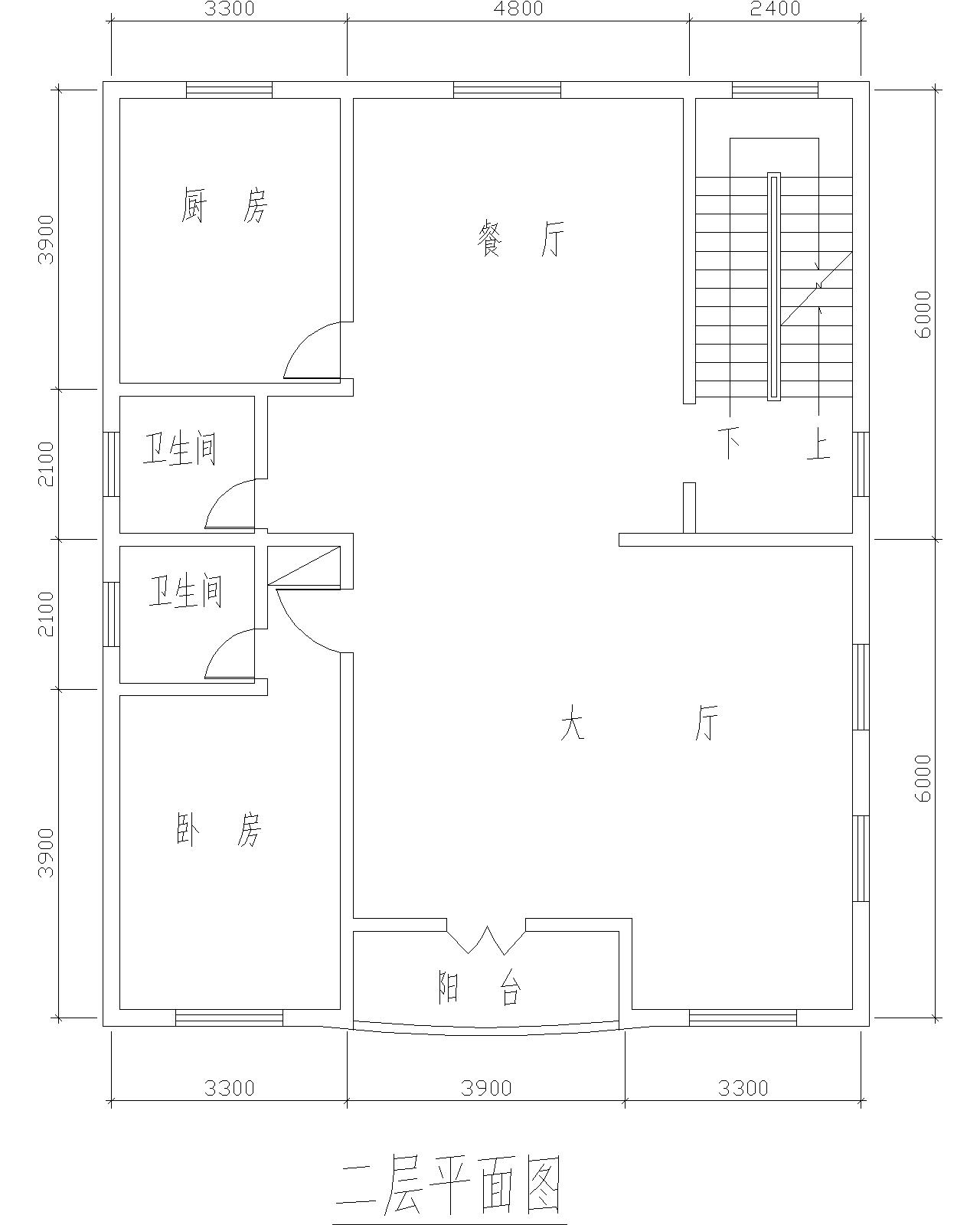
华 华人在树仔 幼儿园 注册 2008-12-27 消息 5 反馈评分 0 点数 0 2008-12-27 #6 住宅的设计是要根据地理环境、位置、坐向、风水、通风、采光、个人爱好等来定取的,不了解你的情况,不好做布置安排,随便画个比较常见的朝南临街图,不一定合你心意和实际,可当没看到吧 [attachmentid=200881] 附件 我的制图-Model.jpg 118 KB · 查看: 392
住宅的设计是要根据地理环境、位置、坐向、风水、通风、采光、个人爱好等来定取的,不了解你的情况,不好做布置安排,随便画个比较常见的朝南临街图,不一定合你心意和实际,可当没看到吧 [attachmentid=200881]
寻找他乡的故事 荣誉主席 注册 2006-12-01 消息 4,400 反馈评分 0 点数 0 2008-12-28 #7 感谢楼上热心的同乡,不过一百多平米的地皮做一个房间有点说不过去!呵呵!还是谢谢你!
寻找他乡的故事 荣誉主席 注册 2006-12-01 消息 4,400 反馈评分 0 点数 0 2008-12-28 #9 QUOTE(kenlee8503 @ 2008年12月28日 Sunday, 02:02 PM) 你要住的还是要做生意的?? [snapback]2624385[/snapback] 一楼门面,2/3楼住人!
QUOTE(kenlee8503 @ 2008年12月28日 Sunday, 02:02 PM) 你要住的还是要做生意的?? [snapback]2624385[/snapback] 一楼门面,2/3楼住人!
华 华人在树仔 幼儿园 注册 2008-12-27 消息 5 反馈评分 0 点数 0 2008-12-28 #11 做五房两厅都可以,看你想什么样了,本人觉得自家人住,二楼这样,三楼可以做三至四个房,如果有四层的话,大把够住了。。。。。。。
电 电白人1 幼儿园 注册 2008-10-10 消息 5 反馈评分 0 点数 0 2008-12-28 #12 楼主真天真,电白的设计院好黑暗的,你想自己搞设计没门,到时不给你报建,还是乖乖花多些钱请那些电白设计院的土匪设计好了。
5 552255 教授 注册 2008-09-07 消息 3,166 反馈评分 2 点数 0 2008-12-30 #13 我家我设计 是一套完全免费的三维立体家庭装修设计软件,由圆方软件公司&新居网自主研发、具有自主知识产权。任何用户仅需几分钟便可轻松玩转家居DIY设计,随意改户型,任意摆家具。 软件大小:25522KB 软件类别:国产软件/工程建筑 软件语言:简体中文 运行环境:Win9x/Me/NT/2000/XP/2003
我家我设计 是一套完全免费的三维立体家庭装修设计软件,由圆方软件公司&新居网自主研发、具有自主知识产权。任何用户仅需几分钟便可轻松玩转家居DIY设计,随意改户型,任意摆家具。 软件大小:25522KB 软件类别:国产软件/工程建筑 软件语言:简体中文 运行环境:Win9x/Me/NT/2000/XP/2003
华 华人在树仔 幼儿园 注册 2008-12-27 消息 5 反馈评分 0 点数 0 2008-12-31 #14 简单做个效果图! 附件 121.bmp 121.bmp 281.9 KB · 查看: 317 122.jpg 200.5 KB · 查看: 369
东澳夕照 论坛荣誉坛主 荣誉会员 注册 2005-04-02 消息 11,507 反馈评分 87 点数 71 所在地 广东电白 性别 男 2008-12-31 #15 首先你的地皮在哪里?乡下吗?因为不同城市有不同的规划,有的地方是规定楼层高度及建筑物的形状、色调,在电白下面的墟镇倒不必计较这些。6楼所画的图完全是无理取闹,看他所画窗的尺寸比例及两个卫生间就知道什么回事。楼主在论坛只是求助,最终还须找专业人员到现场查看地形,之后把自己想法详细的描述出来才可以定出最佳方案。介绍电白一个注册建筑师给你,QQ:350305473 华德
首先你的地皮在哪里?乡下吗?因为不同城市有不同的规划,有的地方是规定楼层高度及建筑物的形状、色调,在电白下面的墟镇倒不必计较这些。6楼所画的图完全是无理取闹,看他所画窗的尺寸比例及两个卫生间就知道什么回事。楼主在论坛只是求助,最终还须找专业人员到现场查看地形,之后把自己想法详细的描述出来才可以定出最佳方案。介绍电白一个注册建筑师给你,QQ:350305473 华德
华 华人在树仔 幼儿园 注册 2008-12-27 消息 5 反馈评分 0 点数 0 2008-12-31 #16 楼上高手请指点一下,怎个无理取闹法?好使我受受益。 随便画画,不要当回事,如果影响了谁的生意,不好意思。 做这样的房子,一些比较有经验的建筑工组头都可以画图建房,不必要什么注册工程师。。。。
E EVD 小学二年级 注册 2005-06-24 消息 156 反馈评分 0 点数 1 2008-12-31 #17 看这么多人留QQ,就知道电白搞建筑确实是多! 我有3个同学也是搞这个,我家就是请他们帮我设计的。真的很不错!普通的材料,但设计了一下效果,就是不一样!!!! 农村屋一般都不设计,但我家就弄了一下效果,材料也很普通,费用也无需增加,但效果就是不一样!!
看这么多人留QQ,就知道电白搞建筑确实是多! 我有3个同学也是搞这个,我家就是请他们帮我设计的。真的很不错!普通的材料,但设计了一下效果,就是不一样!!!! 农村屋一般都不设计,但我家就弄了一下效果,材料也很普通,费用也无需增加,但效果就是不一样!!
ccaijjcad 学前班 注册 2008-12-31 消息 70 反馈评分 0 点数 0 2008-12-31 #18 我路过这里,我是搞设计和装修的,需要就联系我。ccaijjcad@21cn.com 或者QQ120755645,不过要收钱的 附件 1.jpg 78.9 KB · 查看: 354 2.jpg 80.7 KB · 查看: 358 3.jpg 71 KB · 查看: 339 4.jpg 69.2 KB · 查看: 367 5.jpg 70.3 KB · 查看: 363 6.jpg 75 KB · 查看: 352
G guangda 幼儿园 注册 2009-11-18 消息 2 反馈评分 0 点数 0 2009-11-19 #20 本团体为建筑专业设计人员,本科学历,能承接城镇各类私人住宅楼房设计,如各位想建房的朋友欢迎联系我们。联系:QQ 1005389564 注:本团体可以提供图纸如下 1:建筑施工图:各层平面图、立面图、大样图 2:结构施工图:各层结构施工图、各层结构大样图 3:工程概预算 4:效果图(视工程大小而定) 欢迎各位需要的朋友联系,暂时没需要的也可以帮忙宣传。本人也是电白人,本贴诚心与大家优惠合作,非诚者勿扰!谢谢!
本团体为建筑专业设计人员,本科学历,能承接城镇各类私人住宅楼房设计,如各位想建房的朋友欢迎联系我们。联系:QQ 1005389564 注:本团体可以提供图纸如下 1:建筑施工图:各层平面图、立面图、大样图 2:结构施工图:各层结构施工图、各层结构大样图 3:工程概预算 4:效果图(视工程大小而定) 欢迎各位需要的朋友联系,暂时没需要的也可以帮忙宣传。本人也是电白人,本贴诚心与大家优惠合作,非诚者勿扰!谢谢!
d^ò^O冷 ╄→ 什麽t|じò ぴé德e就⒏能在一起t爱情⒐④ _/~K㈠场J折 注册 2007-02-17 消息 2,216 反馈评分 0 点数 0 年龄 34 2009-11-19 #21 我是学建筑的学生 这里好多高手啊
刀 刀疤仔 大学三年级 注册 2008-10-07 消息 812 反馈评分 0 点数 0 年龄 48 2009-11-22 #23 QUOTE(华人在树仔 @ 2008年12月31日 Wednesday, 01:13 PM) 楼上高手请指点一下,怎个无理取闹法?好使我受受益。 随便画画,不要当回事,如果影响了谁的生意,不好意思。 做这样的房子,一些比较有经验的建筑工组头都可以画图建房,不必要什么注册工程师。。。。 [snapback]2627389[/snapback] 你这个图确实布置不合理,但是作为首层不做门面还是可以。
QUOTE(华人在树仔 @ 2008年12月31日 Wednesday, 01:13 PM) 楼上高手请指点一下,怎个无理取闹法?好使我受受益。 随便画画,不要当回事,如果影响了谁的生意,不好意思。 做这样的房子,一些比较有经验的建筑工组头都可以画图建房,不必要什么注册工程师。。。。 [snapback]2627389[/snapback] 你这个图确实布置不合理,但是作为首层不做门面还是可以。